Mieszkanie na sprzedaż Lublin, LSM, os. Piastowskie

3 pokoje
55.90 m²
7 960,64 zł/m2
wysoki parter piętro
AMN-MS-32852
Oblicz ratę kredytu

445 000 zł

Mieszkanie na sprzedaż
Nowa oferta

Szczegóły oferty

Symbol oferty AMN-MS-32852
Powierzchnia 55,90 m²
Powierzchnia użytkowa [m2] 55,90 m²
Liczba pokoi 3
Rodzaj budynku blok
Opłaty wg liczników gaz, prąd
Piętro wysoki parter
Liczba pięter w budynku 5
Piwnica [m2] 5,90 m²
Stan lokalu do remontu
Mies. czynsz admin. 654 PLN
Okna drewniane
Instalacje niewymienione
Balkon średni
Liczba balkonów 1
Rok budowy 1969
Gaz tak - miejski
Woda ciepła - piecyk gazowy
Dojazd asfalt
Ogrzewanie miejskie
Winda tak
Liczba wind 1
Klucze tak
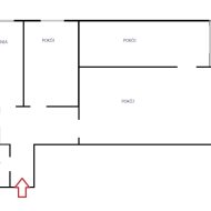
Pomieszczenia

Opis nieruchomości

nieruchomości Lublin*
Polecamy atrakcyjną cenowo ofertę w niskim budownictwie na osiedlu Piastowskim w okolicy fontanny przy ul.Chrobrego. Spokojna lokalizacja sprawdzi się idealnie i pozwoli na odpoczynek wśród zieleni, której nie brakuje na osiedlu. Mieszkanie położone jest na wyższym parterze, posiada trzy pokoje, samodzielną-widną kuchnię, przedpokój i łazienkę oddzielnie z WC. Stanowić będzie idealne lokum dla nowej rodziny. Sprawdzi się także jako inwestycja pod wynajem. W pobliżu znajdują się takie uczelnie jak: UMCS, KUL, UP oraz Politechnika, w pobliżu mamy sklepy, wiele punktów handlowo-usługowych oraz przystanki to wszystko pozwala na bezstresowe funkcjonowanie. Zapraszamy zainteresowane osoby na prezentację i zapoznanie się z ofertą.

1. O P I S  B L O K U = ROK BUDOWY:1969,  MAT. BUDOWLANY:mieszany,  WINDA:nowa, x1
2. O P I S  M I E S Z K A N I A  =  ROZKŁAD:pokój dzienny przejściowy do sypialni.   BALKON:loggia, terakota,   CZYNSZ:654 zł/1 os.,  OPOMIAROWANIE:tak,   OKNA:drewniane,  UMEBLOWANIE:mieszkanie do remontu i własnej aranżacji,  POZOSTAŁE INF.:4 mieszkania na piętrze.
- POKOJE::  3,   POW.: ok. 17m2, 10 m2 i 9 m2, PODŁOGI: mozaika i panele, INF. DODATKOWE:możliwość przebudowy na mieszkanie rozkładowe
- KUCHNIA::  WIDNA,  POW.: ok. 6 m2, ŚCIANY:malowane, glazura,  PODŁOGA:terakota, 
- ŁAZIENKA I WC::  ODDZIELNIE,  ŚCIANY:glazura,   PODŁOGA:terakota,  INF. DODATKOWE:wanna
- PRZEDPOKÓJ::   ŚCIANY:malowane,  PODŁOGA:terakota,    INF. DODATKOWE:szafa
3. S T A N  P R A W N Y  =odrębna własność lokalu mieszkalnego
4. T E R M I N   W Y D A N I A =mieszkanie wolne
5. G A R A Ż  =ogólnodostępne miejsca parkingowe w pobliżu budynku

Lokalizacja nieruchomości

Kalkulatory

Kalkulator kredytowy

Wysokość raty

PLN
%

Kalkulator kosztów

Podatek od czynności cywilno-prawnych

Taksa notarialna
(opłata notarialna)

Wniosek o wpis do KW

VAT od prowizji
agencji nieruchomości

VAT od taksy notarialnej
(opłaty notarialnej)

Prowizja agencji nieruchomości

Wypisy aktu notarialnego

Razem

Uwaga: mogą wystąpić dodatkowe opłaty za założenie księgi wieczystej oraz ustanowienie hipoteki.

PLN
PLN
PLN
PLN
PLN
PLN
%
PLN

Podobne oferty

Mieszkanie na sprzedaż

Lublin, LSM

2 pokoje 49 m2 8 673,47 zł/m2

Mieszkanie na sprzedaż

Lublin, LSM

3 pokoje 65 m2 7 357,91 zł/m2
Nowa oferta

Mieszkanie na sprzedaż

Lublin, LSM

2 pokoje 36 m2 10 387,81 zł/m2
Nowa oferta
Nowa oferta

Mieszkanie na sprzedaż

Lublin, LSM

3 pokoje 58 m2 7 944,73 zł/m2
Nowa oferta

Manager

Proszę wprowadzić poprawne imię i nazwisko
Proszę wprowadzić poprawny numer telefonu
Proszę wprowadzić poprawny adres e-mail
Proszę zaznaczyć wymagane zgody
Rozwiąż równanie:
28 1
Niepoprawny wynik