Mieszkanie na sprzedaż Lublin, LSM, os. Konopnickiej

3 pokoje
57.90 m²
7 685,66 zł/m2
3 piętro
AMN-MS-32877
Oblicz ratę kredytu

445 000 zł

Mieszkanie na sprzedaż
Nowa oferta

Szczegóły oferty

Symbol oferty AMN-MS-32877
Powierzchnia 57,90 m²
Powierzchnia użytkowa [m2] 57,90 m²
Liczba pokoi 3
Rodzaj budynku blok
Opłaty wg liczników gaz, prąd
Piętro 3
Liczba pięter w budynku 4
Piwnica [m2] 5,00 m²
Stan lokalu do remontu
Mies. czynsz admin. 694 PLN
Okna PCV
Balkon jest
Liczba balkonów 1
Gaz tak - miejski
Woda ciepła - piecyk gazowy
Otoczenie osiedle
Ogrzewanie miejskie
Usytuowanie dwustronne
Klucze tak
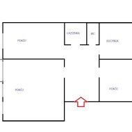
Pomieszczenia

Opis nieruchomości

nieruchomości Lublin*
Polecamy do sprzedaży mieszkanie w niskiej zabudowie w dzielnicy LSM na osiedlu Konopnickiej w rejonie ul. Kaliskiej. Spokojna i zielona lokalizacja pozwala na wypoczynek i wyciszenie się po pracy. Mieszkanie posiada 3- rozkładowe pokoje, widną kuchnię, przedpokój i łazienkę oddzielnie z WC. Poza tym istnieje możliwość podziału największego pokoju na dwa i uzyskania w ten sposób mieszkania 4-pokojowego. Jest to idealna lokalizacja nie tylko dla rodziny, w pobliżu znajduje się wiele punktów handlowo-usługowych, sklepy, przedszkola, szkoły, uczelnie oraz przystanki. Zapraszamy zainteresowane osoby do osobistego zapoznania się z atrakcyjną ofertą.

1. O P I S  B L O K U  =  ROK BUDOWY:1974,   MATERIAŁ BUDOWLANY:WP, budynek ocieplony, 
2. O P I S  M I E S Z K A N I A  = mieszkanie rozkładowe,   BALKON:jest,  USYTUOWANIE:dwustronne, północ,południe,    CZYNSZ:594 zł/1  OS,  OPOMIAROWANIE:tak,  OKNA:PCV,   POZOSTAŁE INF.:dwa mieszkania na piętrze
- POKOJE:: 3,   POW.:ok. 25 m2, 9 m2 i 6 m2,   PODŁOGI:parkiet,   INF. DODATKOWE:rozkładowe
- KUCHNIA::  WIDNA,  POW.:ok. 5 m2,   ŚCIANY:boazeria,   PODŁOGA: wykładzina,   
- ŁAZIENKA I WC:: ODDZIELNIE,  ŚCIANY:glazura, w WC boazeria,   PODŁOGA:wykładzina,
- PRZEDPOKÓJ::  ŚCIANY: boazeria,  PODŁOGA:wykładzina,  INF. DODATKOWE:szafy, pawlacze
3. S T A N  P R A W N Y  = spółdzielcze własnościowe prawo do lokalu mieszkalnego
4. T E R M I N   W Y D A N I A =mieszkanie wolne
5. G A R A Ż  =brak, możliwość parkowania w pobliżu budynku tylko dla mieszkańców, wjazd-szlaban

Lokalizacja nieruchomości

Kalkulatory

Kalkulator kredytowy

Wysokość raty

PLN
%

Kalkulator kosztów

Podatek od czynności cywilno-prawnych

Taksa notarialna
(opłata notarialna)

Wniosek o wpis do KW

VAT od prowizji
agencji nieruchomości

VAT od taksy notarialnej
(opłaty notarialnej)

Prowizja agencji nieruchomości

Wypisy aktu notarialnego

Razem

Uwaga: mogą wystąpić dodatkowe opłaty za założenie księgi wieczystej oraz ustanowienie hipoteki.

PLN
PLN
PLN
PLN
PLN
PLN
%
PLN

Podobne oferty

Mieszkanie na sprzedaż

Lublin, LSM

2 pokoje 49 m2 8 673,47 zł/m2

Mieszkanie na sprzedaż

Lublin, LSM

3 pokoje 65 m2 7 357,91 zł/m2

Mieszkanie na sprzedaż

Lublin, LSM

2 pokoje 36 m2 10 387,81 zł/m2

Manager

Proszę wprowadzić poprawne imię i nazwisko
Proszę wprowadzić poprawny numer telefonu
Proszę wprowadzić poprawny adres e-mail
Proszę zaznaczyć wymagane zgody
Rozwiąż równanie:
24 9
Niepoprawny wynik