Mieszkanie na wynajem Lublin, LSM, os. Konopnickiej, Pana Balcera

2 pokoje
55.65 m²
44,92 zł/m2
9 piętro
ANM-MW-32857

2 500 zł

Mieszkanie na wynajem
Nowa oferta

Szczegóły oferty

Symbol oferty ANM-MW-32857
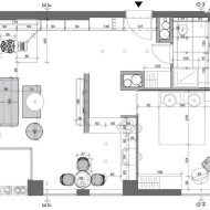
Powierzchnia 55,65 m²
Powierzchnia użytkowa [m2] 55,65 m²
Liczba pokoi 2
Rodzaj budynku apartamentowiec
Technologia budowlana mieszana
Standard
Opłaty w czynszu administracja, CO, Części wspólne, monitoring
Opłaty wg liczników CO, prąd, woda
Piętro 9
Liczba pięter w budynku 17
Garaż własne miejsce garażowe w podziemnym parkingu
Stan lokalu idealny
Typ kaucji do uzgodnienia
Mies. czynsz admin. 687 PLN
Okna nowe PCV
Instalacje nowe
Balkon loggia
Rok budowy 2013
Woda ciepła - miejska
Dojazd asfalt
Ogrzewanie miejskie
Umeblowanie pełne
Alarm tak
Winda tak
Liczba wind 3
Usytuowanie narożne
Drzwi antywłamaniowe tak
Klucze tak
Pomieszczenia
Powierzchnia pokoi 21, 12 m2
Podłogi pokoi gres
Typ kuchni z zabudową kuchenną
Rodzaj kuchni widna
Powierzchnia kuchni 5 m2
Podłoga kuchni gres
Typ łazienki razem z wc
Powierzchnia łazienki [m2] 4,5 m2
Glazura łazienki nowego typu
Podłoga łazienki terakota
Wyposażenie łazienki lustro, natrysk, pralka, umywalka, WC
Podłoga przedpokoi gres

Opis nieruchomości

Do wynajęcia komfortowy apartament, znajdujący się w nowoczesnym i najbardziej prestiżowym budynku apartamentowym w Lublinie "Metropolitan Park"
Udogodnienia dla mieszkańców budynku:
- całodobowa recepcja i ochrona oraz rozbudowany monitoring całego budynku
- siłownia (do wyłącznej dyspozycji mieszkańców jest lustrzana sala z profesjonalnym sprzętem siłowym i urządzeniami aerobowymi)
- 3 nowoczesne windy, przestronna elegancka klatka schodowa i foyer wejściowe

***
Mieszkanie wykończone w wysokim standardzie, wyposażone w klimatyzację, nowoczesna aranżacją wnętrz - układ "na planie otwartym". Pełne umeblowanie i wyposażenie (także zmywarka, pralka), mieszkanie przygotowane do wygodnego zamieszkania jednej lub dwóch osób (para).
Dodatkowo możliwość wynajęcia własnego miejsca garażowego (w sasiednim budynku)

***
Wynajem dla spokojnych osób, także dla obcokrajowców
Opłaty: czynsz najmu 2500 zł + czynsz admin. 687 zł + opłaty licznikowe ( prąd - według zużycia,  ogrzewanie i  woda - nadpłaty ponad kwoty zaliczkowe w czynszu) +ewentualne dodatkowo miejsce garażowe 200 zł
***
Termin wydania: od 01.01.2026


*****

Attractive luxurious apartment for rent in a perfect location, very near to center

The 56 sq.m. apartment consists of an open living room with kitchen annex, 1 bedroom, and bathroom. The whole is furnished and equipped to a high standard  apartment.

Monthly fees: rent 2500 PLN + administration fee 687 PLN + media bills + garage 200 PLN


Available from1st January 2026

Wirtualny spacer

Lokalizacja nieruchomości

Podobne oferty

Nowa oferta

Mieszkanie na wynajem

Lublin, LSM

2 pokoje 49 m2 57,26 zł/m2
Nowa oferta

Manager

Proszę wprowadzić poprawne imię i nazwisko
Proszę wprowadzić poprawny numer telefonu
Proszę wprowadzić poprawny adres e-mail
Proszę zaznaczyć wymagane zgody
Rozwiąż równanie:
24 7
Niepoprawny wynik